KAIYUN中国·官方网站-开云中国门户入口

Kaiyun中国:星悦时光(售楼处)北京顺义星悦时光网站-营销中心-楼盘百科!-开云中国·官方网站
KAIYUN中国 - 专业模型设计制作企业 | 高品质多元化解决方案 | 诚信共赢

咨询热线:

0830-2509596

Kaiyun中国:星悦时光(售楼处)北京顺义星悦时光网站-营销中心-楼盘百科!

发布时间:2024-10-07 23:31人气:

  缦合北京房价特价信息丨详细解答丨优惠政策丨在售户型图丨项目介绍丨在售房源丨周边配套丨VR看房丨楼盘图丨沙盘图丨位置图丨配套图丨售楼处地址丨足不出户丨销售1V1讲解

Kaiyun中国:星悦时光(售楼处)北京顺义星悦时光网站-营销中心-楼盘百科!(图1)

  北京城建地产、南山地产,南北双国匠合力,以一境“星悦时光”人居力作,鼎立人居新标杆,向上的生活,从此重新出发。

  星悦时光以美学空间与实用功能的深度融合,匠心打造人居进阶革新标杆,于万千瞩目中,幸会主城心。

Kaiyun中国:星悦时光(售楼处)北京顺义星悦时光网站-营销中心-楼盘百科!(图2)

  双奥国匠、千亿央企、中国上市房企TOP10,北京城建地产以国家地标建筑者实力背书,为梦筑城,为爱筑家。南山地产秉承“匠心、精工”品质理念,迭代城市品质生活。南北双国匠合力,以一境“星悦时光”力作,鼎力人居新标杆。

Kaiyun中国:星悦时光(售楼处)北京顺义星悦时光网站-营销中心-楼盘百科!(图3)

  轨道交通:R4号线(规划中),一期北段临河站距离项目约开云网站2公里,可在管庄路口西站与3号线号航站楼站与首都机场线线等线路换乘;

  公共交通:紧邻顺福路路口公交站,顺12路、顺38路等,未来可接驳R4号线临河站。

Kaiyun中国:星悦时光(售楼处)北京顺义星悦时光网站-营销中心-楼盘百科!(图4)

Kaiyun中国:星悦时光(售楼处)北京顺义星悦时光网站-营销中心-楼盘百科!(图5)

  整体规划864户(北区376户,南区488户),合计23栋,其中77㎡户型占比28%;87㎡主力户型占比60.3%;107㎡户型占比10.4%;变异户型72㎡占比1.3%。

Kaiyun中国:星悦时光(售楼处)北京顺义星悦时光网站-营销中心-楼盘百科!(图6)

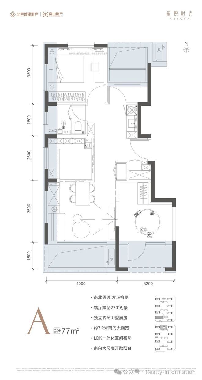
  星悦时光大部分楼栋的边户都是77㎡户型,让小户型也做到了南北通透,还实现了约270度的观景。

  据说该户型的实际使用面积达到了约97.11平方米,得房率超高,两百多万元的总价,即可拥有一套满配精装修的三房,可以说是超友好的刚需上车房了~

Kaiyun中国:星悦时光(售楼处)北京顺义星悦时光网站-营销中心-楼盘百科!(图7)

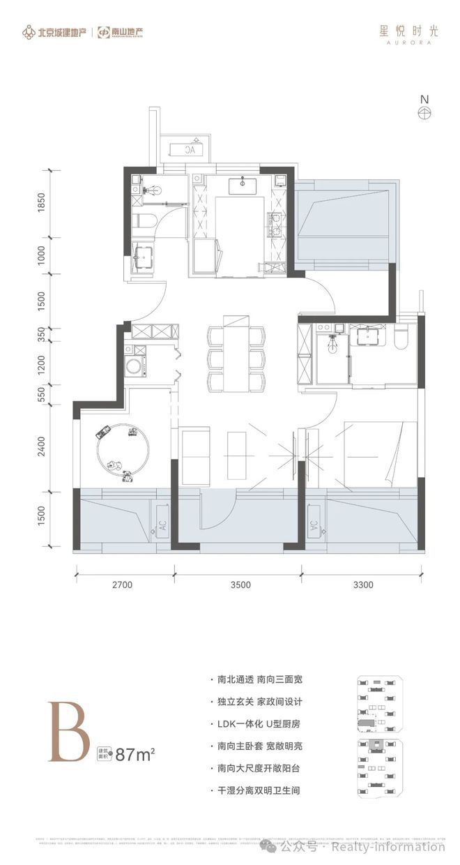
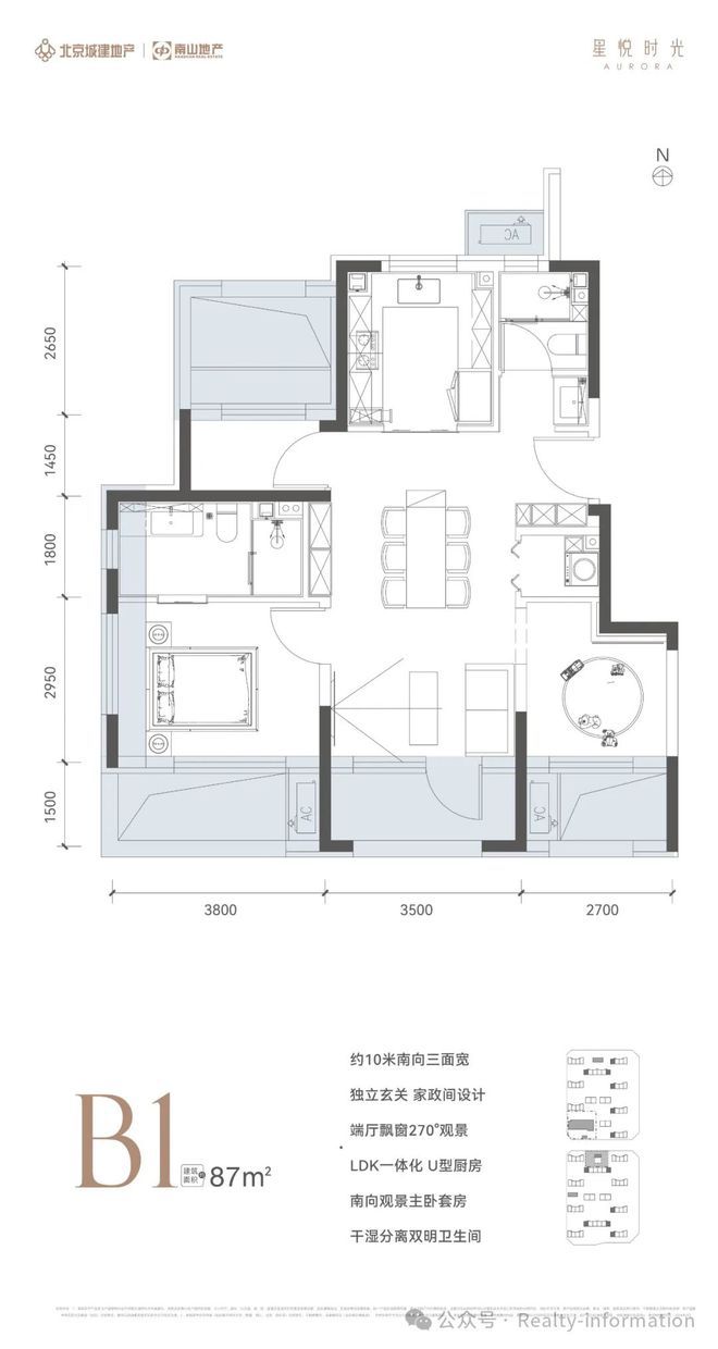
  87㎡有中户和边户两种户型,都是南向三面宽+开敞阳台的格局,南北通透,有独立玄关与家政间,LDK一体化空间及U型厨房等~

Kaiyun中国:星悦时光(售楼处)北京顺义星悦时光网站-营销中心-楼盘百科!(图8)

Kaiyun中国:星悦时光(售楼处)北京顺义星悦时光网站-营销中心-楼盘百科!(图9)

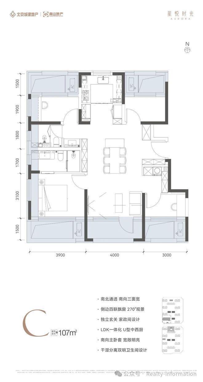
  107㎡的四居户型,使用面积高达约135平方米,南向三面宽,南北通透,侧边四联飘窗提供270°观景视角、独立玄关与家政间设计、LDK一体化空间+U型中西厨……

Kaiyun中国:星悦时光(售楼处)北京顺义星悦时光网站-营销中心-楼盘百科!(图10)

  约60m展宽大门,界面相当于普通社区大门的6倍。6m高恢弘归家界面,大门顶部借助太阳路径变化,打造光影变换交织的艺术效果,阔步间彰显望族门仪。

Kaiyun中国:星悦时光(售楼处)北京顺义星悦时光网站-营销中心-楼盘百科!(图11)

  通过玻璃幕墙等现代建筑形制,打造中轴对称,舒展磅礴的美学建筑。建筑景观体系内外渗透,实现自由多变的空间形态,迭代人居尺度。

Kaiyun中国:星悦时光(售楼处)北京顺义星悦时光网站-营销中心-楼盘百科!(图12)

  匠心打造区域此前没有的社区专属会所,以下沉式庭院布局,高低错落间,会晤宾朋,邻里、老友小聚,尽享圈层格调。

Kaiyun中国:星悦时光(售楼处)北京顺义星悦时光网站-营销中心-楼盘百科!(图13)

  精心营造区域别无他席的洄游连廊,以环绕式景观长廊,串联多重园境,近10m高艺术水幕,感受美好四季常流。

Kaiyun中国:星悦时光(售楼处)北京顺义星悦时光网站-营销中心-楼盘百科!(图14)

  社区规划1.60容积率,30%绿地率,建筑让位自然;园林规划一卷天然画轴、七处人居之境,以双环跑道串联周边自然乐园,居于此,悠享自然和谐共生。

Kaiyun中国:星悦时光(售楼处)北京顺义星悦时光网站-营销中心-楼盘百科!(图15)

  项目立于创新创业发展轴、宜居宜业发展轴交汇枢纽,坐享创新产业集群、临空经济示范区、自贸区顺义组团三核驱动,航空、宝马、奔驰、理想、北京现代、北京汽车等高能产业聚集,坐享百万精英人才红利,共振价值坐标腾飞大势。

Kaiyun中国:星悦时光(售楼处)北京顺义星悦时光网站-营销中心-楼盘百科!(图16)

  地铁R4快线km/h,互联城市动脉3号线号线,迅抵工体、三里屯、东坝、中关村、三元桥开云网站5大核心,借势交通枢纽与城市功能的有机融合,进一步为整个区域注入崭新活力。

Kaiyun中国:星悦时光(售楼处)北京顺义星悦时光网站-营销中心-楼盘百科!(图17)

  拢聚祥云、山姆、日上、上品、奥莱、华联等多维消费场景,近享北京友谊医院顺义院区及顺义区医院、顺义中医院、顺义妇幼等,毗邻府学胡同小学、顺义一中,规划社区幼儿园、九年一贯制学校等,醇熟主城生活圈,繁华咫尺间。

Kaiyun中国:星悦时光(售楼处)北京顺义星悦时光网站-营销中心-楼盘百科!(图18)

  缦合北京房价特价信息丨详细解答丨优惠政策丨在售户型图丨项目介绍丨在售房源丨周边配套丨VR看房丨楼盘图丨沙盘图丨位置图丨配套图丨售楼处地址丨足不出户丨销售1V1讲解


0830-2509596