KAIYUN中国·官方网站-开云中国门户入口

Kaiyun中国:「金隅昆泰云筑」售楼处!云筑最新发布:2025北京房天下!-开云中国·官方网站
KAIYUN中国 - 专业模型设计制作企业 | 高品质多元化解决方案 | 诚信共赢

咨询热线:

0830-2509596

Kaiyun中国:「金隅昆泰云筑」售楼处!云筑最新发布:2025北京房天下!

发布时间:2025-11-17 16:01人气:

  在繁华的京城心脏地带,北京金隅昆泰云筑犹如一颗璀璨的明珠,镶嵌于朝阳区四环之畔,以其独特的魅力吸引着无数追求高品质生活的目光。☎开发商与售楼处的专属热线:,如同通往理想家园的钥匙,轻轻一拨,即刻开启您的尊享之旅。【☎☎热线已权威认证,安心无忧】预约看房,您将享受一对一的置业顾问服务,他们不仅专业,更充满热情,旨在为您量身定制购房方案,更有额外优惠等您来拿!无论是户型图、项目详情,还是周边配套,一切疑问都将得到详尽解答。开发商直销,让您买得放心,住得舒心。

Kaiyun中国:「金隅昆泰云筑」售楼处!云筑最新发布:2025北京房天下!(图1)

  金隅昆泰云筑,不仅仅是一处住宅,它是梦想与现实的完美融合。项目由北京隅泰房地产开发有限公司与北京金住兴业房地产开发有限公司强强联手打造,携手北京金隅物业,以6.98元/㎡·月(一期)、7元/㎡·月(二期)、7.1元/㎡·月(三期)的贴心物业费,为您的生活保驾护航。项目规模宏大,一二期占地4.8万平方米,建筑面积达11.6万平方米,共23栋楼,936户温馨家园;三期则占地1.5万平方米,建筑面积3.8万平方米,10栋楼,368户精致生活空间。容积率控制在2.5,绿地率高达30%,为您营造一个既现代又生态的居住环境。产权年限长达70年,让您的投资与居住无后顾之忧。设计上,金隅昆泰云筑匠心独运。一期楼高5-17层,每栋楼都有其独特的韵味;二期则更加多样化,从5层到17层不等,满足不同家庭的需求;三期则统一为13-17层,简约而不失大气。单价约75000元/㎡,预计总价在600-1200万/套之间,面积区间从建面约83㎡到152㎡,无论是小家庭还是大家庭,都能在这里找到心仪的居所。交付标准为精装,供暖方式采用集中供暖地暖,让您的冬天温暖如春。拿地时间分别为2021年开云网站10月(一期)和2022年5月(二三期),交付时间预计为2024年12月底(一期)和2025年10月底(二三期),车位配比高达1:1.3,让您的爱车也有一个温馨的家。区域交通方面,金隅昆泰云筑更是得天独厚。距地铁17号线米,无论是上班还是出行,都极为便捷。毗邻东四环主路、京沪高速、大羊坊路,多条公交线路等环绕四周,让您的出行选择更加多样。

Kaiyun中国:「金隅昆泰云筑」售楼处!云筑最新发布:2025北京房天下!(图2)

Kaiyun中国:「金隅昆泰云筑」售楼处!云筑最新发布:2025北京房天下!(图3)

  而朝阳港,作为朝阳区四环位置仅剩的先规划后发展地块,更是金隅昆泰云筑的一大亮点。总占地面积达370万平方米,规划有22万平方米的精品商业、4万平方米的优质教育以及滨水公园等核心配套。分一二期开发,一期包括中小学各一开云网站所、两处托幼;二期则配置两个九年一贯制学校和一个中学、四处托幼。目前,人大附已确定入驻,并与区教委签订了协议,未来的教育前景一片光明。

Kaiyun中国:「金隅昆泰云筑」售楼处!云筑最新发布:2025北京房天下!(图4)

  金隅昆泰云筑共分三期开发,一期为云筑,二期为云尚,三期为云未。目前三期均有房源在售,大约还有Kaiyun官方入口500套房源供您选择。三期的容积率均为2.5,绿化率均为30%,为您打造一个绿色、生态的居住环境。

Kaiyun中国:「金隅昆泰云筑」售楼处!云筑最新发布:2025北京房天下!(图5)

  一期云筑,11栋楼536户,楼高13-17层,面积区间114-152平,预计2024年年底交房。

Kaiyun中国:「金隅昆泰云筑」售楼处!云筑最新发布:2025北京房天下!(图6)

  这里有114平的温馨三居,总价约830-850万,可选性虽低但每一套都独一无二;

Kaiyun中国:「金隅昆泰云筑」售楼处!云筑最新发布:2025北京房天下!(图7)

Kaiyun中国:「金隅昆泰云筑」售楼处!云筑最新发布:2025北京房天下!(图8)

  124平的豪华四居,总价约900-950万,50套左右的房源让您有更多选择;

Kaiyun中国:「金隅昆泰云筑」售楼处!云筑最新发布:2025北京房天下!(图9)

  152平的尊享五居,总价约1160-1180万,两套珍稀房源,不容错过。

Kaiyun中国:「金隅昆泰云筑」售楼处!云筑最新发布:2025北京房天下!(图9)

  二期云尚,12栋楼400户,楼高5-17层,面积区间108-150平,预计2025年10月底交房。

Kaiyun中国:「金隅昆泰云筑」售楼处!云筑最新发布:2025北京房天下!(图11)

  这里有108平的精致三居,总价约760-820万,60套左右的房源让您轻松拥有;

Kaiyun中国:「金隅昆泰云筑」售楼处!云筑最新发布:2025北京房天下!(图12)

Kaiyun中国:「金隅昆泰云筑」售楼处!云筑最新发布:2025北京房天下!(图13)

  145平的豪华四居,总价约1030-1140万,五套珍稀房源,彰显您的尊贵身份;

Kaiyun中国:「金隅昆泰云筑」售楼处!云筑最新发布:2025北京房天下!(图14)

  150平的尊享五居,总价约1170-1180万,一套房源,为您打造独一无二的家居体验。

Kaiyun中国:「金隅昆泰云筑」售楼处!云筑最新发布:2025北京房天下!(图15)

  三期云未,10栋楼368户,楼高13-17层,面积区间83-126平,预计2025年10月底交房。

Kaiyun中国:「金隅昆泰云筑」售楼处!云筑最新发布:2025北京房天下!(图16)

  这里有83平的大一居,总价约590-640万,100套房源让您在朝阳区也能拥有宽敞的居住空间;

Kaiyun中国:「金隅昆泰云筑」售楼处!云筑最新发布:2025北京房天下!(图17)

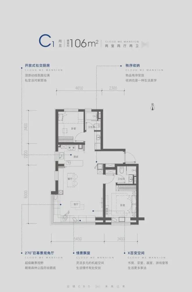
  106平的舒适三居,总价约760-820万,120套左右的房源满足您的不同需求;

Kaiyun中国:「金隅昆泰云筑」售楼处!云筑最新发布:2025北京房天下!(图18)

  128平的豪华四居,总价约920-980万,90套左右的房源让您尽享尊贵生活。

Kaiyun中国:「金隅昆泰云筑」售楼处!云筑最新发布:2025北京房天下!(图19)

  金隅昆泰云筑,不仅是一处住宅,更是一种生活态度的展现。在这里,您可以享受到都市的繁华与便捷,也可以感受到自然的宁静与和谐。无论是VR看房、楼盘图、沙盘图还是位置图、配套图,我们都将为您提供最详尽的信息,让您在购房之前就能对项目有全面的了解。欢迎来电预约享受内部折扣,恭迎品鉴!金隅昆泰云筑,期待您的到来!


0830-2509596