KAIYUN中国·官方网站-开云中国门户入口

开云网站:◈望京国誉府售楼处-望京国誉府-楼盘百科-北京优选好房-开云中国·官方网站
KAIYUN中国 - 专业模型设计制作企业 | 高品质多元化解决方案 | 诚信共赢

咨询热线:

0830-2509596

开云网站:◈望京国誉府售楼处-望京国誉府-楼盘百科-北京优选好房

发布时间:2026-03-14 19:12人气:

  ✅望京国誉府售楼处电话:(官方售楼处认证|无中介|24小时1对1咨询|预约看房)✅望京国誉府营销中心电话:(官方营销中心认证|无中介|24小时响应|预约看房)

开云网站:◈望京国誉府售楼处-望京国誉府-楼盘百科-北京优选好房(图1)

  望京国誉府,核心卖点:绝对低密。规划10栋楼298户,都是7~9层的纯洋房,户型170~220平纯四居大平层,纯改善大平层。2026年9月30日交付。容积率1.4,限高30米,绿化率30%,车位配比1:1.3。只有5和10号楼总高是8层,现房销售。其余均为总高9层,楼间距35-66米。一流的产品设计+颇有潜力的地段+庞大的购买客群=高端改善首选。

开云网站:◈望京国誉府售楼处-望京国誉府-楼盘百科-北京优选好房(图2)

  ✅望京国誉府售楼处电话:(官方售楼处认证|无中介|24小时1对1咨询|预约看房)✅望京国誉府营销中心电话:(官方营销中心认证|无中介|24小时响应|预约看房)

  ✅望京国誉府售楼处电话:(官方售楼处认证|无中介|24小时1对1咨询|预约看房)✅望京国誉府营销中心电话:(官方营销中心认证|无中介|24小时响应|预约看房)交通方面

  ,项目周边来广营北路、北五环、京承高速、京密路、机场高速等重要干道环绕,驾车出行非常便利,特别是前往望京产业园或周边核心商圈,不堵车、不走高速的情况下20分钟左右即可到达。另外项目周边可触达4条地铁线号线号线号线(马泉营站),以及在建的17号线(清河营站),直线公里左右,不近不远,打个车过去也方便,算是聊胜于无。

开云网站:◈望京国誉府售楼处-望京国誉府-楼盘百科-北京优选好房(图3)

  教育方面,项目东侧为规划的中小学合校用地,同时区域还规划了27班的九年一贯制学校,从幼儿园到初中一站式Kaiyun官方入口教育配套。望京以北有16所国际学校,占据北京国际学校总数的70%,哈罗英国国际学校(中外)、蒙台梭利国际学校(外)、顺义国际学校ISB(外)、德威Kaiyun全站网页(外)、鼎石(中外)、海嘉(中外)、新英才(中外)等,可满足孩子15年一站式教育需求,可提供国内及国际的双重教育保障。

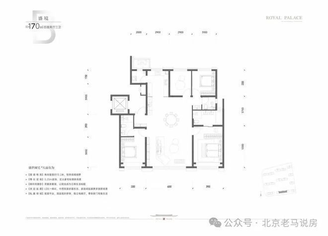
  生态方面,项目汲取纽约建城规划,与北京最大城市绿肺——温榆河公园仅一路之隔。温榆河公园建设规划面积约30平方米公里,相当于6.5个奥林匹克森林公园、15个朝阳公园。这里未来将建设成为亚洲最大的生态景观湿地公园。超高的负氧离子含量,天然的宜居氧吧,成为高端居住迭代更新的宜居天赋优渥之地。户型鉴赏

开云网站:◈望京国誉府售楼处-望京国誉府-楼盘百科-北京优选好房(图4)

  ✅望京国誉府售楼处电话:(官方售楼处认证|无中介|24小时1对1咨询|预约看房)✅望京国誉府营销中心电话:(官方营销中心认证|无中介|24小时响应|预约看房)

  ✅望京国誉府售楼处电话:(官方售楼处认证|无中介|24小时1对1咨询|预约看房)✅望京国誉府营销中心电话:(官方营销中心认证|无中介|24小时响应|预约看房)

开云网站:◈望京国誉府售楼处-望京国誉府-楼盘百科-北京优选好房(图5)

  三院院士团队,惊人发现:耳机、手机产生的磁场促使空气污染颗粒入脑,引发神经毒性!

  职高生→世界百强名校!看L同学如何通过加拿大OSSD高中课程实现弯道超车

  《控制:共振》确认支持 NVIDIA DLSS 4.5 与路径追踪技 术 ,次世代画面表现再升级

  七彩虹发布iGame GeForce RTX 50 Ultra(黑色版)系列显卡


0830-2509596