KAIYUN中国·官方网站-开云中国门户入口

开云网站:龙岗:乐城3期(乐宸花园)加推楼王得房率100%99㎡做4房2卫-开云中国·官方网站
KAIYUN中国 - 专业模型设计制作企业 | 高品质多元化解决方案 | 诚信共赢

咨询热线:

0830-2509596

开云网站:龙岗:乐城3期(乐宸花园)加推楼王得房率100%99㎡做4房2卫

发布时间:2026-04-09 16:42人气:

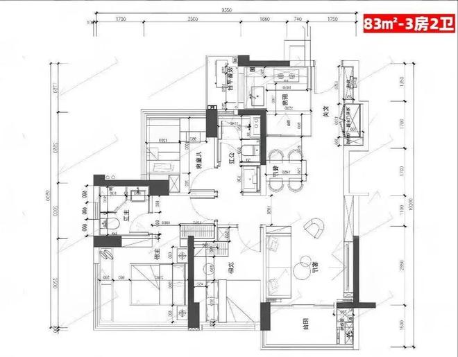
  位于深圳龙岗大运新楼盘——乐城3期(备案名:乐宸花园),全部采用新规住宅户型设计,得房率达100%,本次开盘推出1-3栋住宅,共528套房源,其中83㎡做到了3房2卫(仅112套),99㎡竟做4房2卫,还有115-132m²的4房2卫户型。

开云网站:龙岗:乐城3期(乐宸花园)加推楼王得房率100%99㎡做4房2卫(图1)

  乐城3期都是非超高层(29-32层),所有单元均为3梯6户,户型朝向错开设计,确保每一户都是全南向户型,采光充足。在装修方面,也进行了全面升级:

  3、全三面采光巨幕全景舱,酒店化五进式归家场景,星空顶+双大堂+车马厅,全屋一线品牌豪装精装。

开云网站:龙岗:乐城3期(乐宸花园)加推楼王得房率100%99㎡做4房2卫(图2)

  如果您想要了解更多关于我们乐宸楼盘最新动态或者房价走势,欢迎来电咨询乐城三期开发商售楼处官方电线 (已认证·非中介)中介或自媒体请勿扰,因本项目营销中心现场暂不接受临时到访,采取预约制,为不耽误您的行程和时间,过来楼盘现场前请务必提前来电预约,预约看房的话最终房价还能更优惠,最终房价包您满意!

开云网站:龙岗:乐城3期(乐宸花园)加推楼王得房率100%99㎡做4房2卫(图3)

开云网站:龙岗:乐城3期(乐宸花园)加推楼王得房率100%99㎡做4房2卫(图4)

  乐城三期(乐宸)户型和房价说明(仅供参考,预约看房以下价格还可以更便宜!)

开云网站:龙岗:乐城3期(乐宸花园)加推楼王得房率100%99㎡做4房2卫(图5)

  乐城3期(乐宸),位于深圳市龙岗区园山街道龙岗大道与坳背路交汇处北侧,地处龙岗大运新城核心地段

开云网站:龙岗:乐城3期(乐宸花园)加推楼王得房率100%99㎡做4房2卫(图6)

  颐安乐城,总共分5期开发,乐城1期已经交房目前是二手房在售,乐城2期已经全部售罄,最早的一批在2024年1月份集体交房,这次推售的是乐城3期,另外乐城4期已经在拆平准备动工。

开云网站:龙岗:乐城3期(乐宸花园)加推楼王得房率100%99㎡做4房2卫(图7)

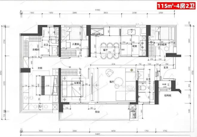
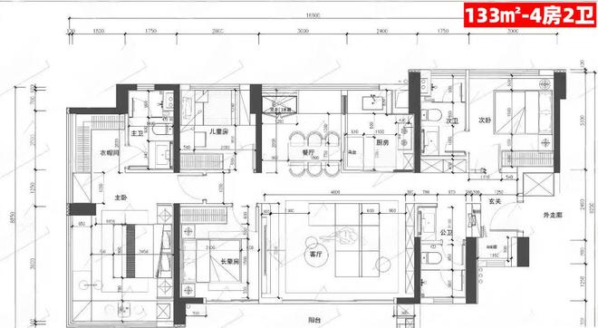
  乐城3期,由颐安集团打造,总占地面积约2.9万㎡,总建筑面积约17.11万㎡,计容建筑面积约12.29万㎡,容积率4.05,绿化率40%,共由6栋29-32层高住宅组成,其中1栋住宅29F,2栋住宅30F,3-6栋住宅32F。总规划1086户,全部3梯6户设计,户户朝南,地下室有3层,规划1116个车位,车位比1:1.02。

开云网站:龙岗:乐城3期(乐宸花园)加推楼王得房率100%99㎡做4房2卫(图8)

  ,设计的是经典竖厅格局,客厅3.35米开间,LDKB一体化,S墙设计预留双开门冰箱卡槽位,三开间朝南,动静分区,U型厨房,公卫三段式干湿分离,赠送1.98平设备平台,

  99㎡的4房2厅2卫,设计的是竖厅格局,客厅3.35米开间,LDKB一体化,S墙设计预留双开门冰箱卡槽位,三开间朝南,动静分区,U型厨房,公卫三段式干湿分离,赠送设备平台,得房率约78.27%(不含赠送)

开云网站:龙岗:乐城3期(乐宸花园)加推楼王得房率100%99㎡做4房2卫(图9)

开云网站:龙岗:乐城3期(乐宸花园)加推楼王得房率100%99㎡做4房2卫(图10)

  ,设计的是竖厅南北通透格局,进门入Kaiyun官方中国户玄关,客厅4.45米开间,餐客厅分离设计,客厅连接次卧出10.87m²的观景大阳台,L型中式+岛台灵动式厨房,公卫三段式干湿分离,

  133㎡的4房2厅2卫,设计的是竖厅南北通透格局,进门入户玄关,客厅5.4米开间,餐客厅分离设计,客厅连接次卧出12.3m²的观景大阳台,L型中式+岛台灵动式厨房,公卫三段式干湿分离,得房率约78.27%(不含赠送)

开云网站:龙岗:乐城3期(乐宸花园)加推楼王得房率100%99㎡做4房2卫(图11)

开云网站:龙岗:乐城3期(乐宸花园)加推楼王得房率100%99㎡做4房2卫(图12)

  交通配套:乐宸花园3期项目距离地铁3号线分钟即可抵达。乘坐地铁1站可达大运站,该站是深圳东部最大的综合交通枢纽,可换乘3号线号线号线号线号线年开通,届时大运站将成为四线换乘枢纽。

开云网站:龙岗:乐城3期(乐宸花园)加推楼王得房率100%99㎡做4房2卫(图13)

  项目小学学区为华南师范大学附属龙岗乐城小学(距离约100米),该学校是政府资助型公立学校,由华南师范大学承办,于2023年11月,学校已Kaiyun官方入口启动扩建工程,将由现状24班小学改扩建为36班九年一贯制学校,新增初中部学位,进一步完善了社区教育配套。中学学区:项目划入园山实验学校初中部和深圳北理莫斯科大学附属园山学校初中部。园山实验学校是公办初中。

开云网站:龙岗:乐城3期(乐宸花园)加推楼王得房率100%99㎡做4房2卫(图14)

  乐宸花园3期项目自带2446m²社区底商,乘坐地铁3号线站可达大运星河COCOPARK,该商业体总建筑面积15.4万㎡,是龙岗区最高端的商业综合体之一,同时项目四期规Kaiyun官方入口划有5万㎡大型集中商业。

开云网站:龙岗:乐城3期(乐宸花园)加推楼王得房率100%99㎡做4房2卫(图15)

开云网站:龙岗:乐城3期(乐宸花园)加推楼王得房率100%99㎡做4房2卫(图16)

  以上就是关于深圳龙岗乐城三期(乐宸花园)楼盘相关的详细介绍,看完以上内容如果您对我们楼盘还有任何疑问,欢迎联系乐宸楼盘开发商售楼处官方电线(已认证 · 中介或自媒体请勿扰)进行免费咨询或预约看房,可以安排本楼盘现场销售在线为您一对一服务,现场销售人员会把楼盘的新资料、样板间图片或视频,通过聊天软件发给您看,您不需要过来楼盘现场都能够熟悉个大概,还可以了解到本楼盘的优点缺点、房产政策、银行贷款政策、积分入学、都给您讲解的明明白白。现场销售还可以为您对我们这个楼盘进行全面更详细的介绍,包含项目开盘详情、近期房价、楼层高低、户型朝向分析、最新折扣优惠活动等更多详情情况,而且还可以避免市场上一些中介虚报价格,耽误您的时间和精力,中介所给的优惠我们全都可以给,让您买的放心,住的舒心!买房是大事,记得及时联系我们。

  鲜花寄哀思!清明前夕民众缅怀吴石将军,故居留言墙满是期盼“台湾回归,祖国统一”

  山东栖霞通报:山火系柳某俊、柳某涛野外祭祀引发,经全力扑救,未造成人员伤亡

  两亿股民怒喊退钱!AI量化+机房特权,这不是炒股是降维收割

  掘金8连胜加时终结马刺11连胜 文班34+18+7约基奇40+8+13

  不止A20 Pro!iPhone 18 Pro系列还将搭载全新C2、N2芯片

  大疆Osmo Pocket 4包装曝光:1英寸传感器、107GB内置存储

  新一代小米SU7完美通过三元锂高温针刺试验:55℃满电针刺 比新国标更严


0830-2509596