KAIYUN中国·官方网站-开云中国门户入口

Kaiyun中国:乐宸园山街道纯新盘低总价上车近园山生态绿肺休闲宜居盘-开云中国·官方网站
KAIYUN中国 - 专业模型设计制作企业 | 高品质多元化解决方案 | 诚信共赢

咨询热线:

0830-2509596

Kaiyun中国:乐宸园山街道纯新盘低总价上车近园山生态绿肺休闲宜居盘

发布时间:2026-04-19 08:59人气:

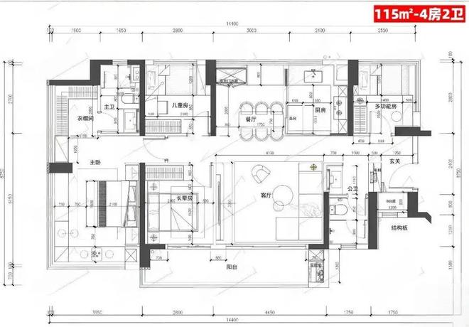
  位于深圳龙岗大运新楼盘——乐城3期(备案名:乐宸花园),全部采用新规住宅户型设计,得房率达100%,本次开盘推出1-3栋住宅,共528套房源,其中83㎡做到了3房2卫(仅112套),99㎡竟做4房2卫,还有115-132m²的4房2卫户型。

Kaiyun中国:乐宸园山街道纯新盘低总价上车近园山生态绿肺休闲宜居盘(图1)

  乐城3期都是非超高层(29-32层),所有单元均为3梯6户,户型朝向错开设计,确保每一户都是全南向户型,采光充足。在装修方面,也进行了全面升级:

  3、全三面采光巨幕全景舱,酒店化五进式归家场景,星空顶+双大堂+车马厅,全屋一线品牌豪装精装。

Kaiyun中国:乐宸园山街道纯新盘低总价上车近园山生态绿肺休闲宜居盘(图2)

  如果您想要了解更多关于我们乐宸楼盘最新动态或者房价走势,欢迎来电咨询乐城三期开发商售楼处官方电线 (已认证·非中介)中介或自媒体请勿扰,因本项目营销中心现场暂不接受临时到访,采取预约制,为不耽误您的行程和时间,过来楼盘现场前请务必提前来电预约,预约看房的话最终房价还能更优惠,最终房价包您满意!

Kaiyun中国:乐宸园山街道纯新盘低总价上车近园山生态绿肺休闲宜居盘(图3)

Kaiyun中国:乐宸园山街道纯新盘低总价上车近园山生态绿肺休闲宜居盘(图4)

  乐城三期(乐宸)户型和房价说明(仅供参考,预约看房以下价格还可以更便宜!)

Kaiyun中国:乐宸园山街道纯新盘低总价上车近园山生态绿肺休闲宜居盘(图5)

  乐城3期(乐宸),位于深圳市龙岗区园山街道龙岗大道与坳背路交汇处北侧,地处龙岗大运新城核心地段

Kaiyun中国:乐宸园山街道纯新盘低总价上车近园山生态绿肺休闲宜居盘(图6)

  颐安乐城,总共分5期开发,乐城1期已经交房目前是二手房在售,乐城2期已经全部售罄,最早的一批在2024年1月份集体交房,这次推售的是乐城3期,另外乐城4期已经在拆平准备动工。

Kaiyun中国:乐宸园山街道纯新盘低总价上车近园山生态绿肺休闲宜居盘(图7)

  乐城3期,由颐安集团打造,总占地面积约2.9万㎡,总建筑面积约17.11万㎡,计容建筑面积约12.29万㎡,容积率4.05,绿化率40%,共由6栋29-32层高住宅组成,其中1栋住宅29F,2栋住宅30F,3-6栋住宅32F。总规划1086户,全部3梯6户设计,户户朝南,地下室有3层,规划1116个车位,车位比1:1.02。

Kaiyun中国:乐宸园山街道纯新盘低总价上车近园山生态绿肺休闲宜居盘(图8)

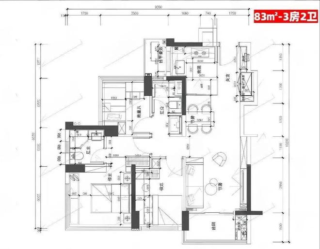
  ,设计的是经典竖厅格局,客厅3.35米开间,LDKB一体化,S墙设计预留双开门冰箱卡槽位,三开间朝南,动静分区,U型厨房,公卫三段式干湿分离,赠送1.98平设备平台,

  99㎡的4房2厅2卫,设计的是竖厅格局,客厅3.35米开间,LDKB一体化,S墙设计预留双开门冰箱卡槽位,三开间朝南,动静分区,U型厨房,公卫三段式干湿分离,赠送设备平台,得房率约78.27%(不含赠送)

Kaiyun中国:乐宸园山街道纯新盘低总价上车近园山生态绿肺休闲宜居盘(图9)

Kaiyun中国:乐宸园山街道纯新盘低总价上车近园山生态绿肺休闲宜居盘(图10)

  ,设计的是竖厅南北通透格局,进门入户玄关,客厅4.45米开间,餐客厅分离设计,客厅连接次卧出10.87m²的观景大阳台,L型中式+岛台灵动式厨房,公卫三段式干湿分离,

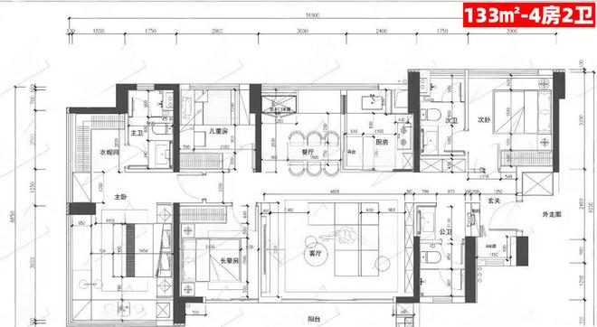
  133㎡的4房2厅2卫,设计的是竖厅南北通透格局,进门入户玄关,客厅5.4米开间,餐客厅分离设计,客厅连接次卧出12.3m²的观景大阳台,L型中式+岛台灵动式厨房,公卫三段式干湿分离,得房率约78.27%(不含赠送)

Kaiyun中国:乐宸园山街道纯新盘低总价上车近园山生态绿肺休闲宜居盘(图11)

Kaiyun中国:乐宸园山街道纯新盘低总价上车近园山生态绿肺休闲宜居盘(图12)

  交通配套:乐宸花园3期项目距离地铁3号线分钟即可抵达。乘坐地铁1站可达大运站,该站是深圳东部最大的综合交通枢纽,可换乘Kaiyun官方入口3号线号线号线号线号线年开通,届时大运站将成为四线换乘枢纽。

Kaiyun中国:乐宸园山街道纯新盘低总价上车近园山生态绿肺休闲宜居盘(图13)

  项目小学学区为华南师范大学附属龙岗乐城小学(距离约100米),该学校是政府资助型公立学校,由华南师范大学承办,于2023年11月,学校已启动扩建工<Kaiyun全站网页a href=http://www.wangluoyueche.com target=_blank>Kaiyun全站网页程,将由现状24班小学改扩建为36班九年一贯制学校,新增初中部学位,进一步完善了社区教育配套。中学学区:项目划入园山实验学校初中部和深圳北理莫斯科大学附属园山学校初中部。园山实验学校是公办Kaiyun官方入口初中。

Kaiyun中国:乐宸园山街道纯新盘低总价上车近园山生态绿肺休闲宜居盘(图14)

  乐宸花园3期项目自带2446m²社区底商,乘坐地铁3号线站可达大运星河COCOPARK,该商业体总建筑面积15.4万㎡,是龙岗区最高端的商业综合体之一,同时项目四期规划有5万㎡大型集中商业。


0830-2509596