记者从中国广核集团有限公司(以下简称中广核)获悉,12月16日,中广核Kaiyun官方入口福建宁德核电站6号机组完成核岛第一罐混凝土浇筑(FCD),...
阅读量:7642024
在上海楼市的价值版图中,“科创高地”始终是驱动板块崛起的核心引擎。尤其是大零号湾,作为与张江科学城、临港新片区并列的上海科创“三巨头”之一,凭借着密...
阅读量:7922024
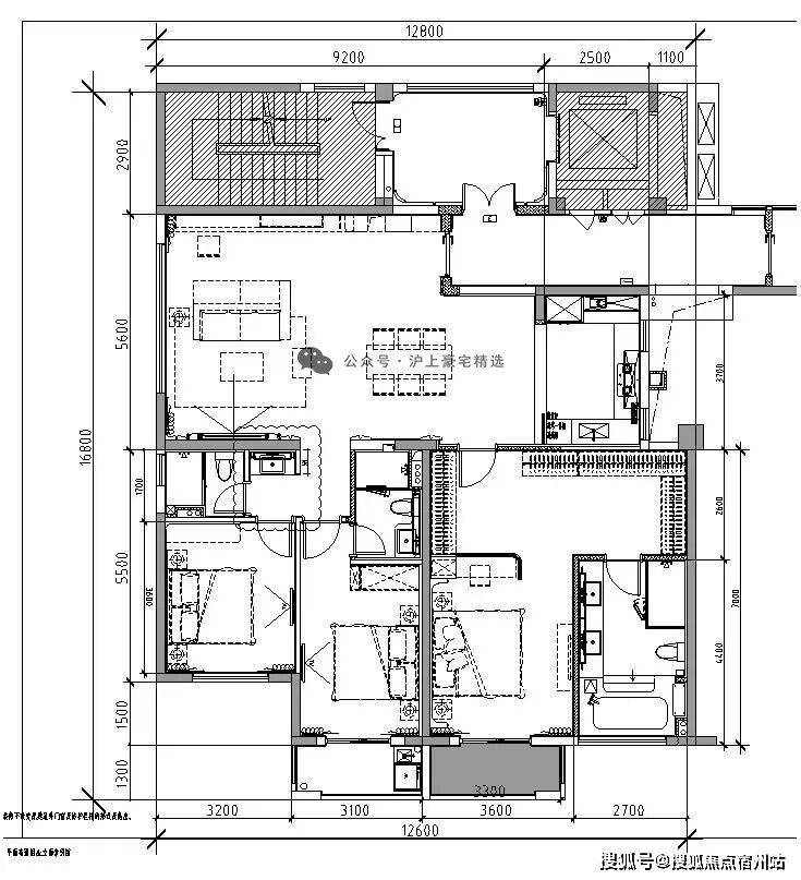
项目于2025年12月11日正式更新电话服务渠道,为确保您获取最前沿信息,现将核心联系方式与权益公示如下: 绿城馥香园售楼处电话:(售楼处...
阅读量:9082024
12月16日,中广核福建宁德核电站6号机组完成核岛第一罐混凝土浇筑(FCD),标志着该机组主体工程正式开工。 宁德核电项目位于福建省福鼎市...
阅读量:8462024
温馨提示:通过网上售楼中心预约,即可尊享内部专Kaiyun官方入口属优惠。我们以匠心独运,恭迎您莅临品鉴!富兴首府特惠房价信息、详尽解答、优惠政策、...
阅读量:6482024
您当前使用的浏览器版本过低,可能存在安全风险,建议升级浏览器,或者用以下浏览器浏览 峰度天下售楼处│峰度天下 (营销中心) 峰度天下- 2...
阅读量:5762024
Copyright © 2024 开云沙盘有限公司 版权所有 备案号:蜀ICP备19012180号 网站地图