KAIYUN中国·官方网站-开云中国门户入口

Kaiyun中国:翡雲悦府售楼处(翡雲悦府)网站-楼盘百科-2025上海优房-开云中国·官方网站
KAIYUN中国 - 专业模型设计制作企业 | 高品质多元化解决方案 | 诚信共赢

咨询热线:

0830-2509596

Kaiyun中国:翡雲悦府售楼处(翡雲悦府)网站-楼盘百科-2025上海优房

发布时间:2025-02-11 06:47人气:

  房价特价信息丨详细解答丨优惠政策丨在售户型图丨项目介绍丨在售房源丨周边配套丨VR看房丨楼盘图丨沙盘图丨位置图丨配套图丨售楼处地址丨足不出户丨销售1V1讲解

  浦东金色中环「华润中能建越秀翡雲悦府」预计将推出建面约120-140㎡高层&170-220㎡叠拼。

  2024年11月27日,华润置地&越秀&中能建联合体于七批次土拍中,经过202轮激战,最终竞得浦东新区Z000602单元20B-12地块,成交价78.97亿,楼面价74426元/㎡,溢价率40.37%。

Kaiyun中国:翡雲悦府售楼处(翡雲悦府)网站-楼盘百科-2025上海优房(图1)开云网站tp%3A%2F%2Fdingyue.ws.126.net%2F2025%2F0210%2Fd0297dddj00srgsva003jd000u0010um.jpg&thumbnail=660x2147483647&quality=80&type=jpg />

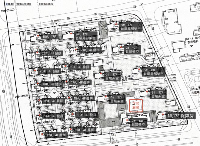
  项目总占地面积53052平米,容积率2.0,总建面165000平米。其中,地上计容建面106104方,地上不计容建面Kaiyun官方入口8896平米,地下建筑面积50000平米,可售住宅高度约14~54米。

  新杨思成为了首个触发“双高双竞”的地块。经过多轮竞指标,该地块装修标准提升至5000元/平方米,新增公共设施和开放空间300平方米,2%的高端人才住房配建比例,上述高品质建设各项要求将全部纳入土地出让合同,实现全生命周期监管,确保高品质建设要求落地。

  项目规划:近日,地块发布设计方案公示,项目采用高低配的形式,推出高层+叠墅的复合产品类型,项目拟建拟建10幢13~19层高层住宅、12幢4层多层住宅、配套公建用房,项目采用人车分流设计,规划配有下沉式庭院。

Kaiyun中国:翡雲悦府售楼处(翡雲悦府)网站-楼盘百科-2025上海优房(图2)

  产品方面,大概率会推出压箱底的产品线,加上苛刻的指标和豪华装修,品质非常值得期待!

  新杨思区域,作为“十四五”期间浦东重点打造的潜力区域之一,依托内中环之间良好区位优势,将以浦东建设“国际消费中心”为契机,打造“上海生活消费新高地”,规划成为浦东“金色中环”区域的微型中央活动区(MCAZ)。

Kaiyun中国:翡雲悦府售楼处(翡雲悦府)网站-楼盘百科-2025上海优房(图3)

  2020年启动的金色中环发展带中,新杨思被单拎出来,成了唯一一个全部处于中环内的潜力地区。

Kaiyun中国:翡雲悦府售楼处(翡雲悦府)网站-楼盘百科-2025上海优房(图4)

  邻近前滩的新杨思,想模仿大宁“商业先行+成片开发”的成功模式,打造一个集商业、住宅、产业、绿化为一体的未来之星。

Kaiyun中国:翡雲悦府售楼处(翡雲悦府)网站-楼盘百科-2025上海优房(图5)

  交通方面,地块距轨道交通6/13号线条公交线路,拥有Kaiyun官方入口杨高南路、杨思路、东明路等快速路。

Kaiyun中国:翡雲悦府售楼处(翡雲悦府)网站-楼盘百科-2025上海优房(图6)

Kaiyun中国:翡雲悦府售楼处(翡雲悦府)网站-楼盘百科-2025上海优房(图7)

  教育设施方面,有上海市杨思中学、新世界实验小学,此外,项目东侧幼儿园已开工,预计2026年竣工;南侧九年一贯制学校已立项,预计2025年开工,2028年竣工,办学规模按27班设置,配备室内泳池。

Kaiyun中国:翡雲悦府售楼处(翡雲悦府)网站-楼盘百科-2025上海优房(图8)

Kaiyun中国:翡雲悦府售楼处(翡雲悦府)网站-楼盘百科-2025上海优房(图9)

  生态方面,项目附近设有中汾泾城市绿地、上南公园、云台路绿地、川杨河休闲绿地等大型公共空间,环境优美。

  新杨思是继前滩、徐汇滨江之后,内中环仅存的一块成片开发区域,并且是一个全部都位于内中环的板块,「华润中能建越秀新杨思项目」非常值得期待。

  上海「华润中能建越秀翡雲悦府」售楼处电线【预约热线】【营销中心】上海「华润中能建越秀翡雲悦府」售楼处电线【预约热线】【预约热线】房价特价信息丨详细解答丨优惠政策丨在售户型图丨项目介绍丨在售房源丨周边配套丨VR看房丨楼盘图丨沙盘图丨位置图丨配套图丨售楼处地址丨足不出户丨销售1V1讲解

  特别声明:以上内容(如有图片或视频亦包括在内)为自媒体平台“网易号”用户上传并发布,本平台仅提供信息存储服务。

  广东21市2024年GDP:广州和深圳差距拉大至近6000亿,湛江、汕头增速全省垫底

  特朗普称计划指示马斯克对教育部和军队进行检查 以揭露价值数千亿美元的欺诈和滥用职权行为

  Makiyo讲述大S头七聚会细节:大家吃蛋糕 吃水果 喝香槟,小S瘦了

  LOL博主开团LEC史一AD,发2小时视频怒怼!多名选手力挺Rekkles


0830-2509596